Situé dans le secteur calme et prisé de Boisparisis, cet appartement traversant représente une opportunité d'investissement locatif sécurisée, avec locataire en place.
À proximité immédiate des commerces, écoles et transports, il bénéficie d'un emplacement stratégique : gare RER B Villeparisis/Mitry à 15 minutes à pied, accès rapide à Roissy Charles-de-Gaulle (15 minutes en voiture), et pour l'équilibre travail/nature, le canal de l'Ourcq à deux pas.
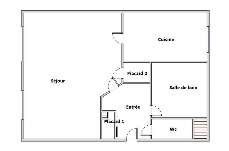
En rez-de-chaussée, cet appartement 1 pièce traversant Est/Ouest offre une belle luminosité tout au long de la journée. Il se compose :
d'une pièce de vie de 19 m²,
d'une cuisine indépendante aménagée,
d'une salle de bain carrelée avec emplacement pour machine à laver,
de WC séparés,
d'une entrée avec placard intégré.
Le bien a fait l'objet d'une rénovation complète (peintures, parquet, ballon d'eau chaude), garantissant un logement en excellent état et sans travaux à prévoir.
Un emplacement de parking privatif en sous-sol sécurisé complète l'ensemble — un vrai plus sur le secteur.
Bien vendu loué : solution idéale pour un investissement serein, avec rentabilité immédiate et gestion simplifiée.
Bien soumis au statut de la copropriété, 18 logements, procédure en cours : aucune, 51 lots, Charges budget prévisionnel annuel 1 020 €.
Annonce publiée par Régis Desmoulins (EI) votre agent commercial en immobilier LF immo à Villeparisis, 77270 immatriculé au RSAC de MEAUX sous le n°978 394 294 000 18. Consultez nos tarifs sur le site LF immo.
Les informations sur les risques auxquels ce bien est exposé sont disponibles sur le site Géorisques : www.georisques.gouv.fr.
Nombre de pièces :
1
Nombre de salles de bain :
1
Surface du bien :
33 m²
Surface du terrain :
-
Surface du salon :
-
Nombre d'étages :
-
Type de chauffage :
-
Gestion du chauffage :
-
Exposition :
-
Consommation énergétique (CE)
277 kWh / m² / an
E
Gaz à effet de serre (GES)
10 kgeqCO2 / m² / an
B
Dépenses énergétiques estimées (min) :
900 € / anDépenses énergétiques estimées (max) :
1260 € / anAnnée de référence des prix de l'énergie :
2023
-
Taxe d'habitation : non définie
Charges de copropriété : 85 €
Taxe foncière : non définie
Nombre de lots :
51
Syndicat de copropriétaire fait l'objet d'une procédure :
non