VENTE Appartement 3 pièces 64.69m²
T3 - 234772 € * - 64 M²

Afficher le numéro

Description

Opportunité à saisir à Villé!
À Vendre : Appartement 3 Pièces de Standing –

Vous avez envie d'un appartement créé spécialement pour vous? Je vous invite à découvrir ce élégant 3 pièces de 68.65 m²au sol situé au 1e étage d'un immeuble récent avec ascenseur, offrant tout le confort moderne pour un quotidien agréable et fonctionnel disponible au dernier trimestre 2026.

Caractéristiques :

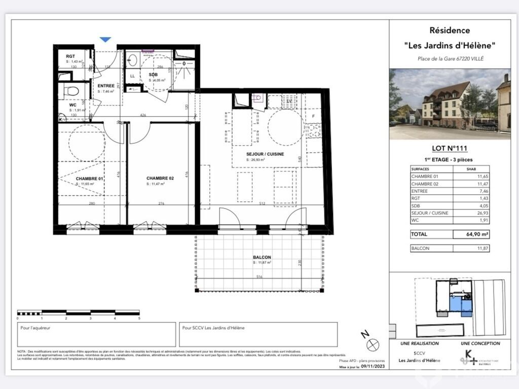
Surface habitable : 64.69 m²
*Aménagements :- Séjour lumineux de 36.20m², cuisine , 2chambres spacieuses de 11.81m² et 10.58m².
-Salle d'eau : Espace d'eau complet (douche / baignoire, vasque avec meuble, et sèche-serviette).-
*Confort :- Chauffage au sol, volets électriques dans toutes les pièces, placards intégrés.
-1 WC séparé
-Balcon de 11.87m²
*Personnalisation et Finitions: Imaginez votre futur appartement à votre image! Profitez de la possibilité de choisir les finitions et matériaux selon vos gouts et créez un
intérieur qui vous ressemble.

*Stationnement : Garage et parking disponibles en SUS.

Une occasion unique de devenir le premier propriétaire d'un appartement dans un immeuble moderne, pensé pour votre confort et votre bien-être à Villé, proche de tout commodités(pharmacie, commerces, école, crèche et bien plus encore).

Ce appartement est proposée au prix de vente de 234.772 euros.
N'attendez plus pour concrétiser votre projet immobilier à Villé. Pour toute information, contactez Mlle Andreea Lako dès aujourd'hui !
Prix hors honoraires d'agence 227 729 €.
Prix honoraires inclus 234 772 €.
Bien soumis au statut de la copropriété, 10 logements, procédure en cours : aucune, 24 lots, Charges budget prévisionnel annuel 1 396 €.

Annonce publiée par Andreea Dorina Lako (EI) votre agent commercial en immobilier LF immo à Epfig, 67680 immatriculé au RSAC de COLMAR sous le n°952 429 751 000 11. Consultez nos tarifs sur le site LF immo.

Les informations sur les risques auxquels ce bien est exposé sont disponibles sur le site Géorisques : www.georisques.gouv.fr.

Honoraires à la charge de l'acquéreur

Prix hors honoraires :

227729 €

Honoraires acquéreur :

3.1 %

Détails du bien

Nombre de pièces :

3

Nombre de salles de bain :

-

Surface du bien :

64 m²

Surface du terrain :

-

Surface du salon :

-

Nombre d'étages :

3

Type de chauffage :

-

Gestion du chauffage :

-

Exposition :

-

Diagnostic de Performance Énergétique

Consommation énergétique (CE)

-

Gaz à effet de serre (GES)

-

Equipements

-

Charges

Taxe d'habitation : non définie

Charges de copropriété : 116 €

Taxe foncière : non définie

Ref : fr061902
Afficher le numéro

Copropriété

Nombre de lots :

24

Syndicat de copropriétaire fait l'objet d'une procédure :

non

À propos de l'agence

Ce bien est présenté par LF IMMO

SIRET :

49089966300028