A 20 minutes de St Étienne au coeur de Saint Chamond, cette maison d'exception vous invite à poser vos valises dans un cadre où confort et charme d'antan se conjuguent avec douceur. Offrant une surface généreuse de 350 m² habitables sur un terrain de plus de 1100 m², cette demeure de 1930, en très bon état, promet un véritable havre de paix en plein centre-ville.
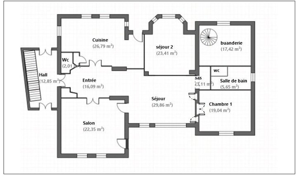
Dès l'entrée, vous serez séduit par l'espace et la luminosité qui baignent les 15 pièces, pensées pour accueillir une grande famille ou conjuguer vie professionnelle et personnelle avec aisance. Sept chambres, trois salles de bain et trois WC composent ce lieu où chacun trouvera son coin de tranquillité. La surface totale de 450 m², incluant sous-sol et cave, offre des possibilités d'aménagement supplémentaires selon vos envies.
La maison dispose d'une cuisine équipée, chaleureuse et fonctionnelle, idéale pour partager des moments conviviaux. Le chauffage au bois et la cheminée apportent une atmosphère cosy et réconfortante, parfaite pour les soirées d'hiver. Trois balcons orientés à l'est permettent de profiter des premiers rayons du soleil, tandis que la terrasse et le jardin privatif invitent à la détente en plein air, dans un environnement calme et préservé.
Côté praticité, quatre places de parking privatives facilitent le quotidien, un atout rare en centre-ville. La cave et le sous-sol complètent l'ensemble, offrant des espaces de rangement appréciables. La disponibilité immédiate de cette maison vous permet d'envisager une installation rapide dans ce cadre de vie privilégié.
N'attendez plus pour découvrir cette belle demeure où chaque détail a été pensé pour votre bien-être. Pascale 06 10 59 31 47 et Béatrix 06 81 07 79 88
Annonce publiée par Pascale Vartanian (EI) votre agent commercial en immobilier LF immo à Mornant, 69440 immatriculé au RSAC de Lyon sous le n°507 583 599 000 18. Consultez nos tarifs sur le site LF immo.
Les informations sur les risques auxquels ce bien est exposé sont disponibles sur le site Géorisques : www.georisques.gouv.fr.
Nombre de pièces :
15
Nombre de salles de bain :
3
Surface du bien :
350 m²
Surface du terrain :
1133 m²
Surface du salon :
-
Nombre d'étages :
2
Type de chauffage :
-
Gestion du chauffage :
-
Exposition :
-
Consommation énergétique (CE)
422 kWh / m² / an
G
Gaz à effet de serre (GES)
12 kgeqCO2 / m² / an
C
Dépenses énergétiques estimées (min) :
10000 € / anDépenses énergétiques estimées (max) :
12000 € / anAnnée de référence des prix de l'énergie :
2021
annexe
Taxe d'habitation : non définie
Charges de copropriété : non défini
Taxe foncière : non définie